Der von Ihnen verwendete Browser wird nicht unterstützt.

Bitte aktivieren Sie JavaScript, um diese Seite im vollen Umfang zu nutzen.

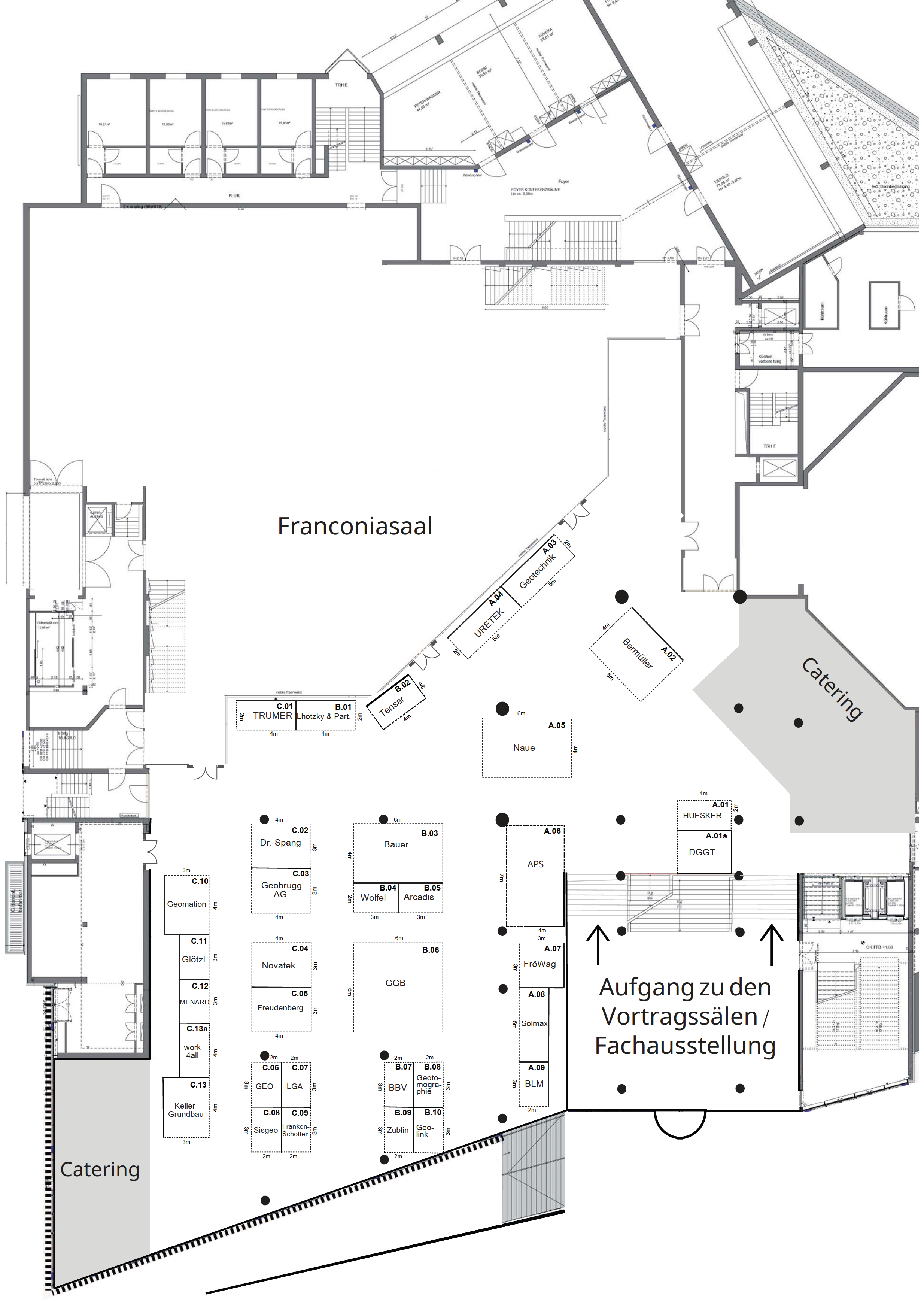
Ausstellungsplan

Ausstellungsplan

Aussteller